KLS nieuwbouw woning Opwijk 2008 - 2010















Programma | nieuwbouw laag-energie woning |
---|---|
Studiebureaus | Stabicom, stabiliteit |
Bouwheer | Verhaegen-Mannaert |
Oppervlakte | 174 m² |
Ontwerp | 2008 |
Uitvoering | 2010 |
Fotografie | RADAR architecten |
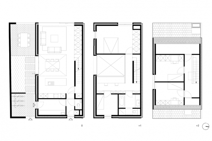
Deze woning is door het weglaten van de achterbouw compact. Voor het hellend dak is het een combinatie van een steile en minder steile helling geworden wat de noklijn 1,5m lager brengt dan maximaal toegelaten. Deze zorgt ervoor dat de zolder nog bewoonbaar is en zich toch niet te hoog in de omgeving manifesteert. Bovendien is de minder steile helling aan de achter- en zuidwestzijde gesitueerd wat het plaatsen van eventuele zonnecollectoren mogelijk maakt. Wat de materialisatie betreft wordt er gekozen voor een oranje-rood genuanceerde ringovensteen uit de nabije omgeving. De woning zal ook een duidelijke opbouw krijgen door toepassing van horizontale banden met vertikaal metselwerk. Deze materialisatie zal naadloos aansluiten op de bakstenen woningen in de straat, de meeste hiervan maken ook gebruik van verschillende metselverbanden en -technieken. De woning zal evident en onopvallend in zijn omgeving staan door zijn volume en materialisatie zonder hier een kopie van te zijn.
Door een deel van het slaap-programma door te schuiven naar de 2e verdieping onder het dak, kwam er op de eerste verdieping ruimte vrij voor bureau en speelkamer. Deze zijn middels een vide rechtstreeks verbonden met het woongedeelte op het gelijkvloers. Op het gelijkvloers is de zitruimte gekoppeld aan de tuin achteraan en de eetkamer en keuken aan een tuinkamer aan de zijkant. Deze zone garandeert zoals eerder vemeld de privacy t.o.v. buren maar geeft ook extra kwaliteit. Deze tuinkamer zal in de tussenseizoenen door zijn omslotenheid en de ZO-oriëntatie ook zorgen voor een ideaal buitenklimaat. Doordat de structuur draagt van zijgevel tot scheimuur en alle nevenfuncties, circulatie en sanitair voorzien zijn langs de scheimuur blijft de overige ruimte open met maximale relaties.