DOS verbouwing meergezinswoning Opwijk 2009 - 2010
| Programma | verbouwing meergezinswoning |
|---|---|
| Studiebureaus | Stabicom, stabiliteit |
| Bouwheer | Vandemeerssche-Vanderstraeten
 |
| Oppervlakte | 210 m² |
| Ontwerp | 2009 |
| Uitvoering | 2010 |
| Fotografie | RADAR architecten |
Het gebouw is gelegen aan de rand van Opwijk centrum en vlakbij het station. Omdat de achterbouw van inferieure kwaliteit was, werd beslist deze volledig te slopen en een nieuwe achterbouw op te trekken.
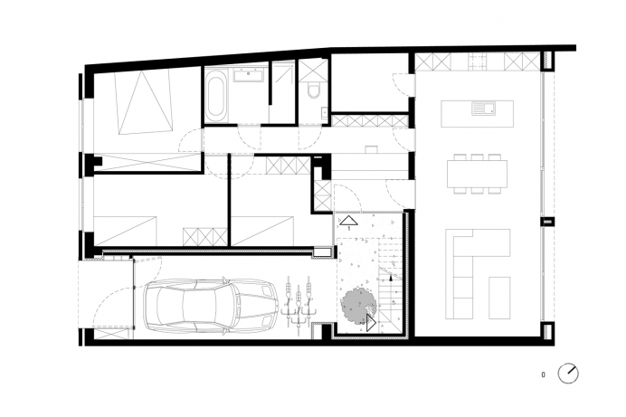
Op het gelijkvloers werd een appartement gemaakt dat aansluit op de vrij grote privé-tuin. Het tweede appartement op de verdieping werd voorzien van een nieuwe toegang en een dakterras.
Om de autostaanplaats, de toegangen tot de appartementen en een fietsenberging te voorzien zonder al te veel ruimte op het gelijkvloers te verliezen, is er gekozen om een open, overdekte toegang te realiseren die al deze elementen bevat. Het is een aangename, leesbare toegang tot de twee appartementen die op het einde uitkomt in een kleine patio. Deze buitenruimte zorgt niet alleen voor extra licht op het gelijkvloers, deze zorgt tevens voor een duidelijke toegang voor elk appartement.
In de zone achter het hoofdgebouw en naast de patio zit de toegang van het appartement op het gelijkvloers. Deze zone is voorzien van een lagere plafondhoogte waar voornamelijk nevenfuncties zoals berging, kleine werkplek en een inkom zijn gesitueerd.
De achterbouw opent zich naar de tuin toe door zijn breedte en verschil in plafondhoogte. De leefruimte is langs de tuin gelegen, baadt in het licht en zal ruim aanvoelen door een grotere plafondhoogte. Dit verschil in plafondhoogte is ook voordelig voor de privacy van het gelijkvloers appartement en de tuinen van de buren. Op het lager gedeelte is namelijk het dakterras van het appartement op de eerste verdieping voorzien. Doordat hierachter een hoger volume is gesitueerd dat niet toegankelijk is, zal het zicht op de tuinen erachter enorm beperkt zijn.